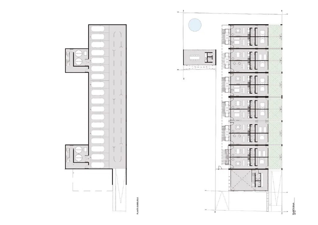
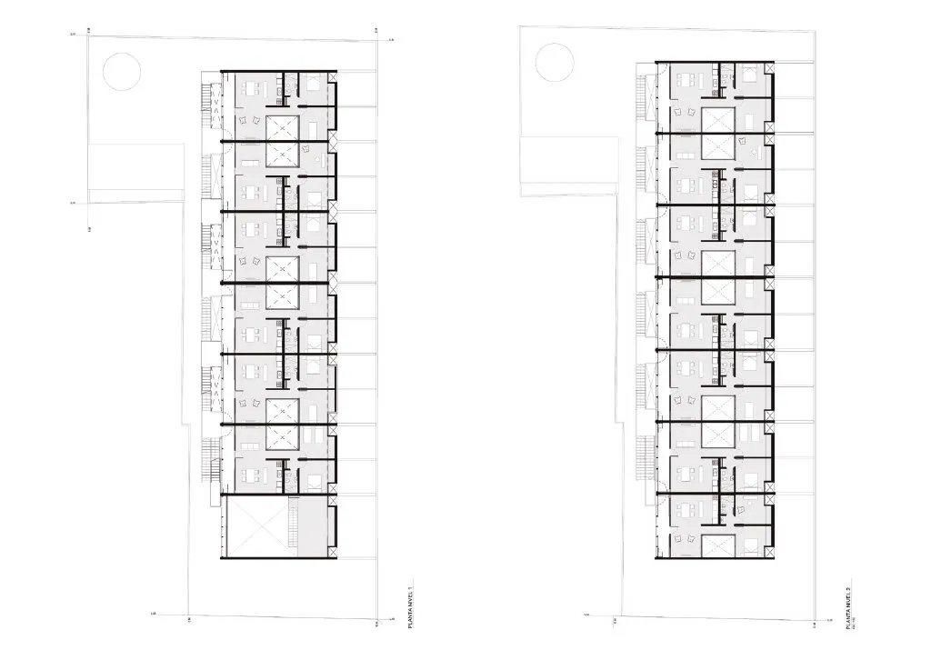
Vive con total confort y tranquilidad en departamentos diseñados para mejorar tu calidad de vida.
En VIVARIUM, cada detalle ha sido cuidadosamente diseñado para ofrecerte espacios amplios, funcionales y modernos, en un entorno que combina innovación constructiva y un entorno sereno en Jesús María.






Preguntas Frecuentes sobre el Proyecto Vivarium






